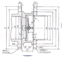
H77X型對夾式雙瓣止回閥概述: 止回閥安裝在管路系統,其主要作用是防止介質倒流,止回閥是一種依靠介質壓力開啟和關閉的自動閥門。以往國內普遍采用的是H44型法蘭連接旋啟式止回閥和H41型法蘭連接升降式止回閥,這種傳統的止回閥體積笨大,流體阻力大,閥門關閉時水錘壓力高,安裝、維修難,使用壽命短。 |
 |
 |
H77X型對夾式雙瓣止回閥性能參數:
| 型 號 |
公 稱 壓 力 PNMPa |
試驗壓力PNMPa |
工作溫度 (℃ ) |
適用介質 |
| 殼 體 |
密 封 |
|
H77X
H77H
H77Y
H77W |
1.0 |
1.5 |
1.1 |
軟密封:
<80
硬密封:
<450 |
水、氣體、油品、硝酸等 |
| 1.6 |
2.4 |
1.76 |
| 2.5 |
3.75 |
2.75 |
| 4.0 |
6.0 |
4.4 |
| 6.4 |
9.6 |
7.0 | | |